|
Муниципальное имущество
21 декабря 2011 г., Муниципальное имущество
Аукцион признан не состоявшимся
| Комитет по управлению имуществом г.Лыткарино (организатор аукциона) сообщает, что аукцион по продаже права на заключение Договора аренды земельного участка с кадастровым номером 50:53:0000000:29 площадью 76317 кв.м, местоположение: Московская область, г.Лыткарино, ул.Колхозная, категория земель – земли населенных пунктов, для комплексного освоения в целях жилищного строительства, проведенный 19.12.2011 года, признан не состоявшимся, так как в аукционе участвовал единственный участник – ЗАО «ЮИТ Московия».
Далее…
|
|
18 ноября 2011 г., Муниципальное имущество
Извещение
| Извещение о проведении аукциона по продаже права на заключение Договора аренды земельного участка для комплексного освоения в целях жилищного строительства
Далее…
|
|
13 сентября 2011 г., Муниципальное имущество
Извещение о проведении торгов № 060911/0072220/01
| Комитет по управлению имуществом г.Лыткарино сообщает о проведении торгов в форме аукциона на право заключения договора аренды муниципального имущества городского округа Лыткарино Московской области.
Аукцион на право заключения договора аренды состоится 25.10.2011г. в 15-00 по московскому времени по адресу: 140080, Московская область, г. Лыткарино, ул. Спортивная, д.3.
Далее…
|
|
10 августа 2011 г., Муниципальное имущество
Итог
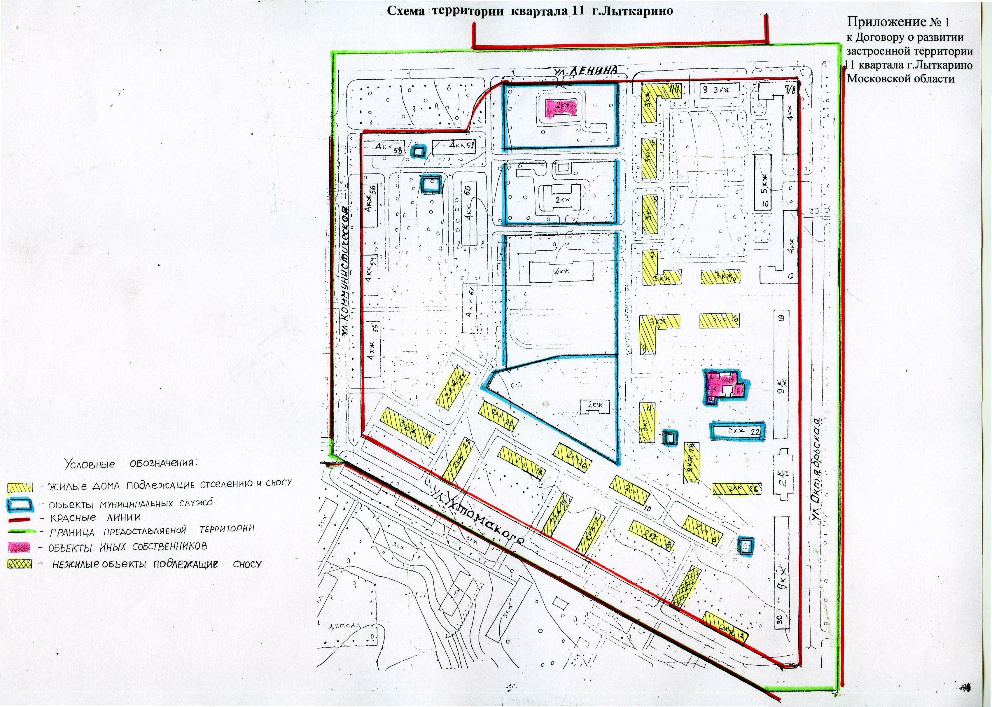
| Комитет по управлению имуществом г.Лыткарино (организатор аукциона) сообщает, что аукцион по продаже права на заключение Договора о развитии застроенной территории квартала № 11 города Лыткарино Московской области ориентировочной площадью 12 га, проведенный 09.08.2011 года, признан не состоявшимся, так как в аукционе участвовал единственный участник – ООО Производственное объединение «РЕКОНСТРУКЦИЯ».
Далее…
|
|
8 июля 2011 г., Муниципальное имущество
Извещение
| Извещение о проведении аукциона по продаже права на заключение Договора о развитии застроенной территории квартала № 11 города Лыткарино Московской области ориентировочной площадью 12 га.
Далее…
|
|
25 марта 2011 г., Муниципальное имущество
Извещение
| Комитет по управлению имуществом г.Лыткарино (организатор торгов) сообщает о проведении торгов в форме аукциона на право размещения нестационарных объектов мелкорозничной торговой сети.
Аукцион проводится в соответствии с постановлениями Главы г.Лыткарино от 11.06.2010 № 134-п , от 26.01.2011 № 30-п «О размещении нестационарных объектов мелкорозничной торговой сети».
Далее…
|
|
2 февраля 2011 г., Муниципальное имущество
Протокол
| Протокол о результатах аукциона на право заключения договора аренды недвижимого имущества
Далее…
|
|
2 февраля 2011 г., Муниципальное имущество
Протокол
| Протокол рассмотрения заявок на участие в аукционе на право заключения договора аренды недвижимого имущества.
Далее…
|
|
29 января 2011 г., Муниципальное имущество
Итог аукциона
| Комитет по управлению имуществом г.Лыткарино (организатор аукциона) сообщает, что аукцион по продаже права на заключение Договора аренды земельного участка площадью 35334 кв.м с кадастровым номером 50:53:0020107:14, расположенного по адресу: Московская область, г.Лыткарино, ул.Ленина, для комплексного освоения в целях жилищного строительства, проведенный 25.01.2011 года, признан не состоявшимся, так как в аукционе участвовал единственный участник – ООО «Славянское подворье Л». Далее…
|
|
29 января 2011 г., Муниципальное имущество
Итог аукциона
| Комитет по управлению имуществом г.Лыткарино (организатор аукциона) сообщает, что аукцион по продаже права на заключение Договора о развитии застроенной территории кварталов №№ 4, 6, 8 города Лыткарино Московской области ориентировочной площадью 10,8 га, проведенный 25.01.2011 года, признан не состоявшимся, так как в аукционе участвовал единственный участник – ООО «Славянское подворье Л». Далее…
|
|
Страница 2 из 4 « 1 2 3 4 »
|
|
|
Официальный сайт Администрации городского округа Лыткарино, © 2009. Все права защищены.
Учредитель: Администрация городского округа Лыткарино
При использовании материалов с данного сайта прямая ссылка на источник обязательна.
Свидетельство о регистрации СМИ ЭЛ № ФС 77 76615 от 15.08.2019 г.
выдано Федеральной службой по надзору в сфере связи, информационных технологий и массовых коммуникаций (Роскомнадзор).
Главный редактор Лопатина О.С.
Телефон редакции: 8-495-555-53-55
e-mail для связи: orgotdel.lyt@mail.ru
Категория 12+
|